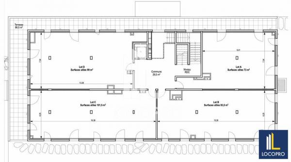
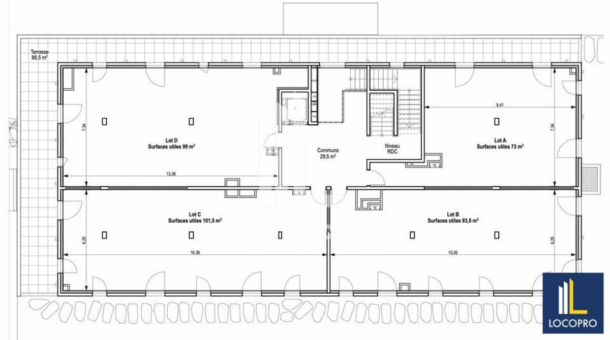
Nous vous proposons à la location des bureaux/locaux neufs de 94 m² situés à La Duranne, un secteur dynamique et en pleine expansion d'Aix-en-Provence. Ces locaux seront livrés neufs en janvier 2026 dans un bâtiment moderne respectant les dernières normes en matière d'efficacité énergétique, de confort thermique et acoustique. Pensés pour s'adapter aux besoins variés des entreprises, ils offrent un espace modulable comprenant bureaux cloisonnés, open space ou salle de réunion selon votre organisation. L'environnement tertiaire, très attractif, est complété par une bonne accessibilité aux axes routiers ainsi que par la présence de commerces et services à proximité immédiate. Ce bien inclut également des places de parking couvertes, facilitant l'accueil de vos collaborateurs et clients dans un cadre sécurisé et pratique. Ces locaux neufs constituent une opportunité rare d'implantation ou de relocation dans un secteur stratégique, au sein d'un cadre de travail moderne et confortable. Disponibles à partir de janvier 2026, ils sont à découvrir rapidement.
| Loyer | 200 € / m2 / an |
| Charges | 935 € |
| Honoraires | 15% HT du loyer annuel HT |
| Batiment - Lot | Etage | Type | Surface | Loyer annuel | Charges annuelles | Parkings | Disponibilité |

Locopro Alpes-Maritimes